Ismertető
Otthon Start hitelre alkalmas!!
Megvételre kínálok egy 240nm-es, 2 szintes,
amerikai konyhás-nappali+ 6szobás, 2 fürdős téglaházat, 629nm telken.
Rengeteg pozitívum jellemzi ezt a csodás, KIVÁLLÓ ÁLLAPOTÚ OTTHONT!
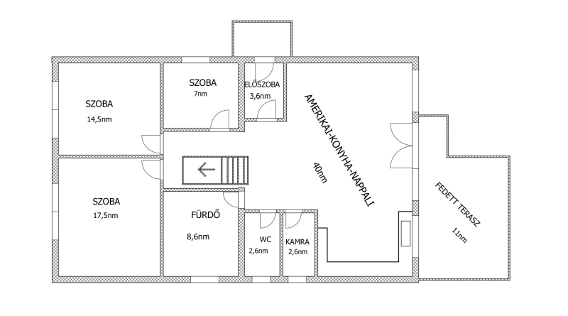
A földszinten:
-Előszoba,
-3db szoba,
-Fürdő,
-Wc,
-Kamra,
-Hatalmas, közel 40nm-es, amerikai konyhás-Nappali 3,2 méteres belmagassággal.
Innen jutunk ki a teraszra, ami nemcsak fedett, de 2 oldalról a ház és a garázs határolja, a hátoldalán redőnnyel zárható.
Az emeleten:
-Kényelmes közlekedő,
-3db szoba,
-Fürdő,
-Wc,
-Tároló szoba
Itt található a 2022-es, modern, Energiahatékony, kondenzációs Gáz cirkó, víztárolóval.
A házban 5 db NORD Hűtő-Fűtő Klíma segíti a rezsicsökkentést,
Thermo műanyag nyílászárók, redőnnyel.
A vételár része a gépesített konya.
3x16 amper
A telken
-térkővel kirakott autó-beálló
-elektromos kapu
-Fúrt kút
-automata öntöző és csepegtető rendszer
-garázs
-tároló
-beton placc a medencének…….
Cégünk INGYENES, iroda és bank-független Hitel ügyintézéssel is rendelkezésére áll, nem csak nálunk vásárolt ingatlanokra!!
Kérdés és-vagy időpont egyeztetés miatt hívjon bátran akár hétvégén is.
Amennyiben nem tudom felvenni visszahívom
Részletek
-
Szobák száma:
7 -
Állapot:
kiváló -
Fűtés:
gáz + alternatív -
Épület típusa:
családiház -
Terasz:
11 m2 -
Tájolás:
DNY -
Szintek száma:
2 -
Telekméret:
629 m2 -
Övezet:
lakó -
Fényviszonyok:
világos
