Ismertető
3%-OS HITEL, CSOK+, ILLETÉKMENTESSÉG, ZÖLD-HITEL, ENERGIATAKARÉKOS HÁZ, JÓ KÖZLEKEDÉS!!!
5-SZOBA, NAPELEMMEL KOMBINÁLHATÓ HŐSZIVATTYÚ, PADLÓFŰTÉS, NAGY TELEK!!
KEDVEZŐ ÁR!! 80millió Ft.
Önálló CSALÁDI HÁZAT kínálok megvételre Ráckeve csendes, zöldövezeti mellékutcájában, hatalmas telekkel!!
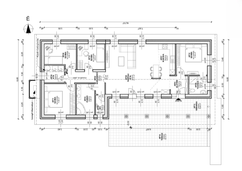
A földszintes OTTHON, NETTÓ 108nm:
Előtér 3,95nm
Közlekedő 6,41nm
Fürdő 6,80nm
WC 2,15nm
Tusoló 4,00nm
HTH 4,18nm
Amerikai-Konyhás-Nappali 40,5nm
Szoba 8,54nm
Szoba 8,40nm
Szoba 11,56nm
Szoba 11,56nm
Veranda 19,90nm
Terasz 38,14nm
Bruttó: 166,05nm
Központi helyen, mégis nyugodt környezetben,
Buszmegálló, Bevásárlási lehetőség, Szakorvosi rendelő, 5 perc gyalogosan!!
Pár műszaki adat:
-Alapozás: vasbeton, 8 cm szerelő-, 8 cm sóderágy
-Falazat: 30 cm Leier blokk külső, 10 cm téglaszerkezetű belső válaszfal
-Födém: faszerkezetű, belül gipszkarton borítással
-Külső hőszigetelés: 10 cm grafitos vagy 15 cm fehér hungarocell
-Tető: nyeregtető Leier cserépfedéssel, 30 cm szigeteléssel
-Nyílászárók: műanyag, fehér, 3 rétegű üvegezéssel
-Bejárati ajtó: hőszigetelt, 85.000 Ft értékben
-Belső ajtók: dekor darabok, 26.000 Ft/db értéken
-Burkolatok: melegburkolat 3.500 Ft/m², hidegburkolat 4.500 Ft/m² értékben
-Gépészet: levegő hőszivattyús padlófűtés, fürdőben törölközőszárítós radiátor
-Villanyszerelés: Schneider Asfora kapcsolók, konnektorok, TV- és internet-kiállások
-Vízszerelés: nagy nyomású műanyag csövezés, meleg vizet is a hőszivattyú biztosítja
-Kerítés: beton elemes, utcafronti pillérekkel, zártszelvény keretű nyíló kapuval, festve
Cégünk INGYENES, iroda és bank-független Hitel ügyintézéssel is rendelkezésére áll, nem csak nálunk vásárolt ingatlanokra!!
Kérdés és-vagy időpont egyeztetés miatt hívjon bátran akár hétvégén is.
Amennyiben nem tudom felvenni visszahívom
Részletek
-
Szobák száma:
5 -
Állapot:
új -
Fűtés:
hőszivattyús -
Épület típusa:
családiház -
Terasz:
58 m2 -
Szintek száma:
1 -
Telekméret:
1105 m2 -
Övezet:
lakó -
Energ. tanúsítvány:
A+
