Ismertető
3%-OS HITEL, CSOK+, ILLETÉKMENTESSÉG, ZÖLD-HITEL, ENERGIATAKARÉKOS HÁZ!!!
Csak a Dream Credit kínálatában!!
Megvételre kínálom Ráckevén, Gyönyörű zöld környezetben, 2 percre a kisDunától,
ezt az új építésű, 4szobás, garázsos, 2 teraszos,különálló házat.
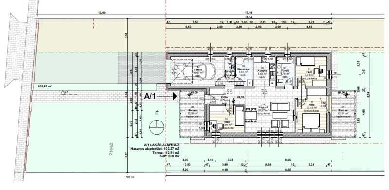
Az ingatlan Hasznos alapterület: 103,27 m2 Terasz: 25,62 m2 Kert: 608 m2
-Garázs
-Amerikai-konyha-nappali
-3db hálószoba
-kamra
-fürdő
-wc
MEGBÍZHATÓ, REFERENCIÁVAL RENDELKEZŐ KIVITELEZŐTŐL!!!
A fűtéséről, NAPELEMMEL KOMBINÁLHATÓ, HŐSZIVATTYÚ gondoskodik, padlófűtéssel.
KIEMELKEDŐ műszaki tartalom.
Alapozás C-12-16/KK beton sávalap, lábazat 2 sor zsalukő PC simított
Teherhordó falazat: PTH 30, válaszfal PHT 10
Födém: faszerkezet 20 cm Therwoolin szigetelés, 12,5 mm gipszkarton
Héjazat: Bramach Duna betoncserép
Külső nyílászárók: FEHNSTER műanyag, Thermo nyílászárók 3 rétegű
Ereszcsatorna: körben
Külső homlokzat: 10 cm grafitos dryvit, Kingston,v secret vödrös nemes vakolat fehér színekben
Kapcsolók- konnektorok: 50db
Fűtés: padlófűtés, hőszivatyú fűtés-villanybojler
Belső nyílászárók: utólag beszerelhető beltéri ajtó
Hidegburkolatok: Padlólap 10.000Ft/nm-ig.
Meleg burkolatok: Laminált parketta 10.000 Ft/nm-ig
Fürdőszobában csempe: 2 m magasan, wc-ben: 150 cm magasan
Konyhában két bútor közt 60 cm
Csaptelepek:20.000 Ft/db
Szaniteráruk: porcelán mosdó 50.000 Ft, WC 40.000 Ft , 170-es akril kád 120.000 Ft
Teraszburkolat: Csak munkadíj. Anyag, ragasztó, élvédő vásárlása a vevő költsége, ha vevő a terven megadott m2-nél nagyobb teraszt kér annak költségét vevő viseli.
Festés: 2X glettelés, DISZPERZITEZÉS festés fehér színben
Műszaki járda: 60 cm beton a ház körül + a kerítéstől a bejáratig 100 cm
Kerítés: Elválasztó kerítés. Utcafronti kerítés, antracit szürke, díszkövekből áll,
Választható: napelem közökkel, amit igény szerint rá tud kötni saját rendszerére is.
Általános tereprendezés, földfeltöltés nélkül
Közművek: Villany 1x32, Vezetékes víz, csatorna
H-tarifás óra
Riasztó kiállás
Elektromos kapu kiállás
Cégünk INGYENES, iroda és bank-független Hitel ügyintézéssel is rendelkezésére áll, nem csak nálunk vásárolt ingatlanokra!!
Kérdés és-vagy időpont egyeztetés miatt hívjon bátran akár hétvégén is.
Amennyiben nem tudom felvenni visszahívom.
Részletek
-
Szobák száma:
4 -
Állapot:
új -
Fűtés:
hőszivattyús -
Épület típusa:
ikerház -
Terasz:
25 m2 -
Tájolás:
D -
Szintek száma:
1 -
Telekméret:
608 m2 -
Övezet:
lakó -
Energ. tanúsítvány:
A+ -
Fényviszonyok:
világos
