Ismertető
Megvételre kínálok Dömsödön ÚJ ÉPÍTÉSŰ, egyszintes,
Otthon start 3% hitelre, Zöldhitelre, Csok+ra alkalmas ikerházat!!
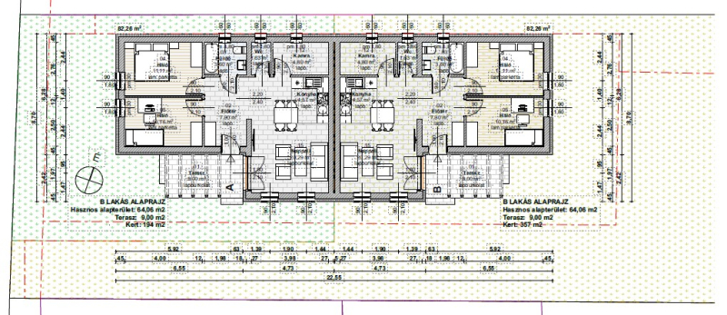
A LAKÁS Nettó 64,06 m2 Terasz: 9,00 m2 Kert: 194 m2 47,9M
-Előtér 7,9nm
-Amerikaikonyhás-Nappali 24,86nm
-szoba 11,11nm
-szoba 10,16nm
-fürdő 3.6nm
-wc 1.63nm
-kamra 4,8nm
B LAKÁS Nettó 64,06 m2 Terasz: 9,00 m2 Kert: 357 m2 48,9M
-Előtér 7,9nm
-Amerikaikonyhás-Nappali 24,86nm
-szoba 11,11nm
-szoba 10,16nm
-fürdő 3.6nm
-wc 1.63nm
-kamra 4,8nm
Az épület fűtéséről, NAPELEMMEL KOMBINÁLHATÓ, HŐSZIVATTYÚ gondoskodik, padlófűtéssel.
Pár műszaki adat: -Leier 30-as téglából épül, tégla válaszfalakkal, -külső szigetelése Dryvit rendszerű -fa tetőszerkezet, -fa födém, -gipszkarton mennyezet, -Bramac cserépfedés -műanyag hőszigetelt nyílászárók -külső Dryvit rendszerű szigetelés -A belső burkolatok kiválaszthatóak.
5 perc séta a távolsági buszmegálló.
Bölcsöde, óvoda, iskola, Kultúr és Egészség-Ház, bevásárlási lehetőségek!!
10 % foglalóval leköthető
Várható Átadás 2026 II.negyedév.
Cégünk INGYENES, iroda és bank-független Hitel ügyintézéssel is rendelkezésére áll, nem csak nálunk vásárolt ingatlanokra!!
Kérdés és-vagy időpont egyeztetés miatt hívjon bátran akár hétvégén is.
Amennyiben nem tudom felvenni visszahívom.
Részletek
-
Szobák száma:
3 -
Állapot:
új -
Fűtés:
hőszivattyús -
Épület típusa:
ikerház -
Terasz:
9 m2 -
Szintek száma:
1 -
Telekméret:
357 m2 -
Övezet:
lakó -
Energ. tanúsítvány:
A+
