Ismertető
3%-OS OTTHON START HITEL, CSOK+, ILLETÉKMENTESSÉG, ZÖLD-HITEL, ENERGIATAKARÉKOS HÁZAK!!!
VASÚTI KÖZLEKEDÉS BUDAPESTRE A KELETI PÁLYAUDVARRA!!!
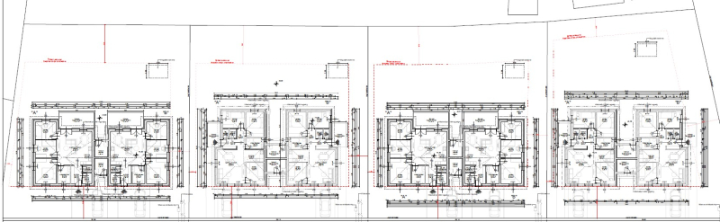
4DB TELEK, 2 FÉLE ALAPRAJZBÓL VÁLSZTHAT!
Megvételre kínálok Dömsödön nyugodt környezetben, 800nm-es telkekre épülő, ÚJ, egyszintes, NAPELEMMEL KOMBINÁLHATÓ, HŐSZIVATTYÚS, padlófűtéses, TÁROLÓ KAPCSOLATOS ikerházakat!!
Saját elkerített telek, külön albetét házanként!!
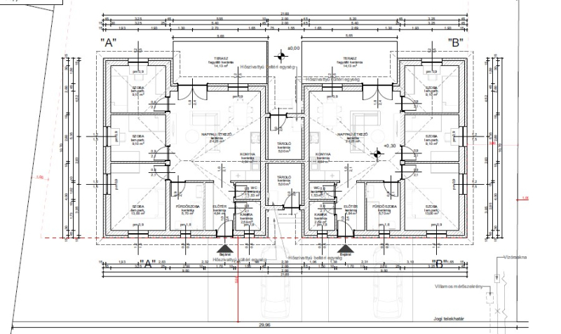
1.alaprajz
A LAKÁS Nettó 75 nm+ Tároló 5nm Terasz: 14 nm Kert: 400nm
-Előtér 4,84nm
-Amerikaikonyhás-Nappali 28,89nm
-szoba 13nmnm
-szoba 9,1nm-szoba 9,1nm
-fürdő 5,7nm
-wc 1.53nm
-kamra 2,59nm
B LAKÁS Nettó 75 nm+ Tároló 5nm Terasz: 14 nm Kert: 400nm
-Előtér 4,84nm
-Amerikaikonyhás-Nappali 28,89nm
-szoba 13nmnm
-szoba 9,1nm-szoba 9,1nm
-fürdő 5,7nm
-wc 1.53nm
-kamra 2,59nm
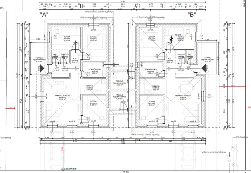
2.alaprajz
A LAKÁS Nettó 73 nm+ Tároló 5nm Terasz: 8,25 nm Kert: 400nm
-Előtér 3,52nm
-Amerikaikonyhás-Nappali 28,83nm
-szoba 11,05nmnm
-szoba 9,25nm-szoba 8,85nm
-fürdő 4,98nm
-wc 1.35nm
-kamra 1,35nm-közlekedő 3,94nm
B LAKÁS Nettó 75 nm+ Tároló 5nm Terasz: 8,25nm Kert: 400nm
-Előtér 3,52nm
-Amerikaikonyhás-Nappali 28,83nm
-szoba 11,05nmnm
-szoba 9,25nm-szoba 8,85nm
-fürdő 4,98nm
-wc 1.35nm
-kamra 1,35nm-közlekedő 3,94nm
Pár műszaki adat 2026-év szabványnak megfelelően:
-Leier 30-as téglából épül, tégla válaszfalakkal,
-külső szigetelése Dryvit rendszerű szigetelés
-fa tetőszerkezet,
-fa födém,
-függesztett gipszkarton mennyezet,
-Bramac cserépfedés
-3rétegű, műanyag hőszigetelt nyílászárók
-A belső burkolatokat a vevő választja.
Bölcsöde, óvoda, iskola, Kultúr és Egészség-Ház, bevásárlási lehetőségek!!
Cégünk INGYENES, iroda és bank-független Hitel ügyintézéssel is rendelkezésére áll, nem csak nálunk vásárolt ingatlanokra!!
Kérdés és-vagy időpont egyeztetés miatt hívjon bátran akár hétvégén is.
Amennyiben nem tudom felvenni visszahívom.
Részletek
-
Építés éve:
2026 -
Szobák száma:
4 -
Állapot:
új -
Fűtés:
hőszivattyús -
Épület típusa:
családiház -
Terasz:
14 m2 -
Szintek száma:
1 -
Telekméret:
400 m2 -
Övezet:
lakó -
Energ. tanúsítvány:
A+
