Ismertető
3%-OS OTTHON START HITEL, CSOK+, ILLETÉKMENTESSÉG, ZÖLD-HITEL, ENERGIATAKARÉKOS HÁZ!!!
BUSZMEGÁLLÓ GYALOGOSAN 1 PERC SÉTÁRA!
VASÚTI KÖZLEKEDÉS BUDAPESTRE A KELETI PÁLYAUDVARRA!!!
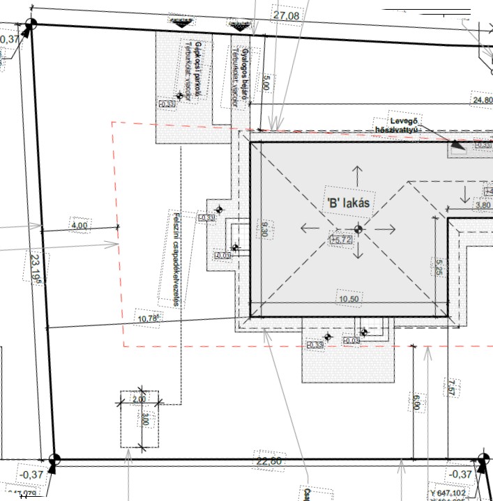
Megvételre kínálok Dömsöd KÖZPONTJÁHOZ KÖZEL, 1059nm-es telekre épülő, ÚJ, egyszintes, NAPELEMMEL KOMBINÁLHATÓ, HŐSZIVATTYÚS, padlófűtéses, TÁROLÓ KAPCSOLATOS ikerházat!!
Saját elkerített telek, külön albetét házanként.
MÁR CSAK A B-LAKÁS ELÉRHETŐ
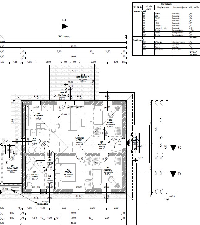
B LAKÁS Nettó 75,57 nm + Tároló 5nm Terasz: 17,15nm Telek: 542,93 nm
-Előtér 4,64nm
-Amerikaikonyhás-Nappali 26,71nm
-szoba 11,88nm
-szoba 9,57nm-szoba 8,68nm
-fürdő 5,94nm
-wc 1.8nm
-Háztartási h.4,95 nm
-közlekedő 1,4nm
Pár műszaki adat 2026-év szabványnak megfelelően:
-Leier 30-as téglából épül, tégla válaszfalakkal,
-külső szigetelése Dryvit rendszerű szigetelés
-fa tetőszerkezet,
-fa födém,
-függesztett gipszkarton mennyezet,
-Bramac cserépfedés
-3rétegű, műanyag hőszigetelt nyílászárók
-A belső burkolatokat a vevő választja.
Bölcsöde, óvoda, iskola, Kultúr és Egészség-Ház, bevásárlási lehetőségek!!
Cégünk INGYENES, iroda és bank-független Hitel ügyintézéssel is rendelkezésére áll, nem csak nálunk vásárolt ingatlanokra!!
Kérdés és-vagy időpont egyeztetés miatt hívjon bátran akár hétvégén is.
Amennyiben nem tudom felvenni visszahívom.
Részletek
-
Építés éve:
2026 -
Szobák száma:
4 -
Állapot:
új -
Fűtés:
hőszivattyús -
Épület típusa:
ikerház -
Terasz:
17 m2 -
Szintek száma:
1 -
Telekméret:
542 m2 -
Övezet:
lakó -
Energ. tanúsítvány:
A+
